-
Proyecto Arquitectónico Integral: Casa para Vivienda y Comercio (8x22m)
Optimice su inversión con este pack de planos profesionales diseñados específicamente para terrenos de 8 metros de frente por 22 metros de fondo. Este proyecto de uso mixto está pensado para maximizar la rentabilidad del suelo, permitiendo la integración de locales comerciales de alta demanda con una distribución de vivienda funcional y moderna.
📦 ¿Qué incluye este Pack de Planos?
El paquete consta de archivos especializados en formato .DWG, listos para ser editados o presentados para trámites de legalización:
-
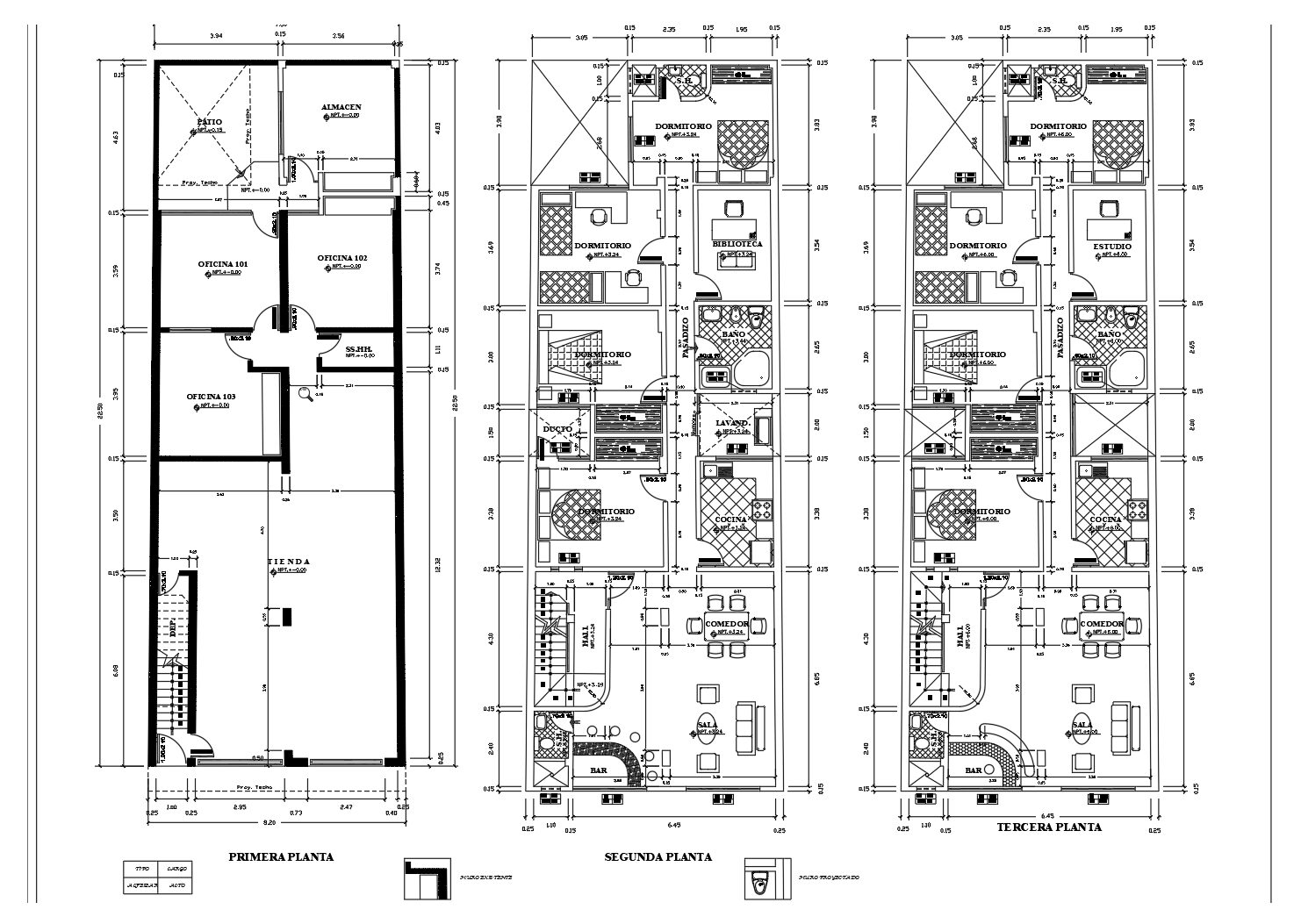
Planos Arquitectónicos: Distribución completa de espacios, muros, mobiliario sugerido y circulación optimizada.
-
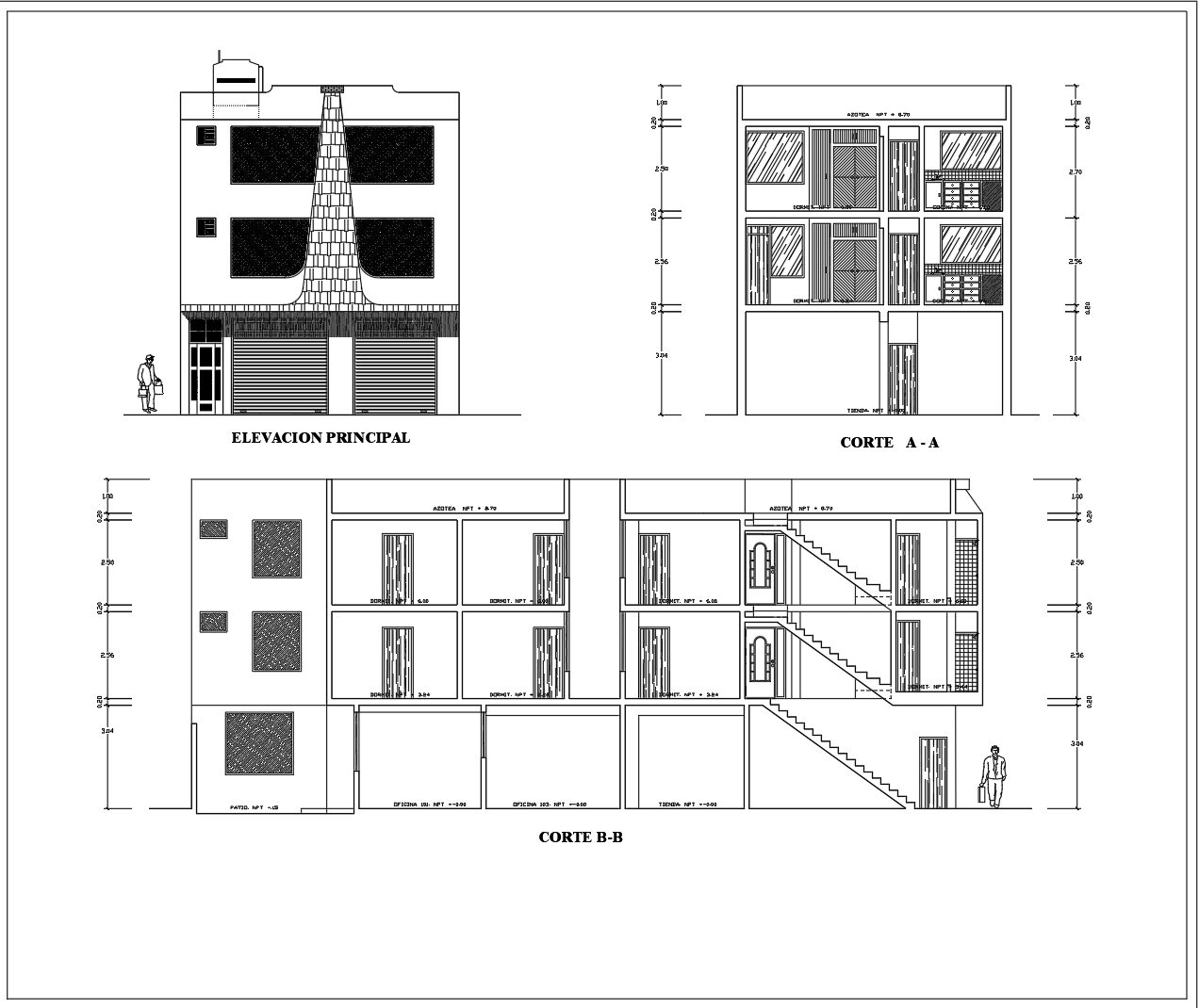
Fachadas y Elevaciones: Diseño estético de la fachada principal (comercial/residencial) y vistas laterales para una comprensión volumétrica total.
-
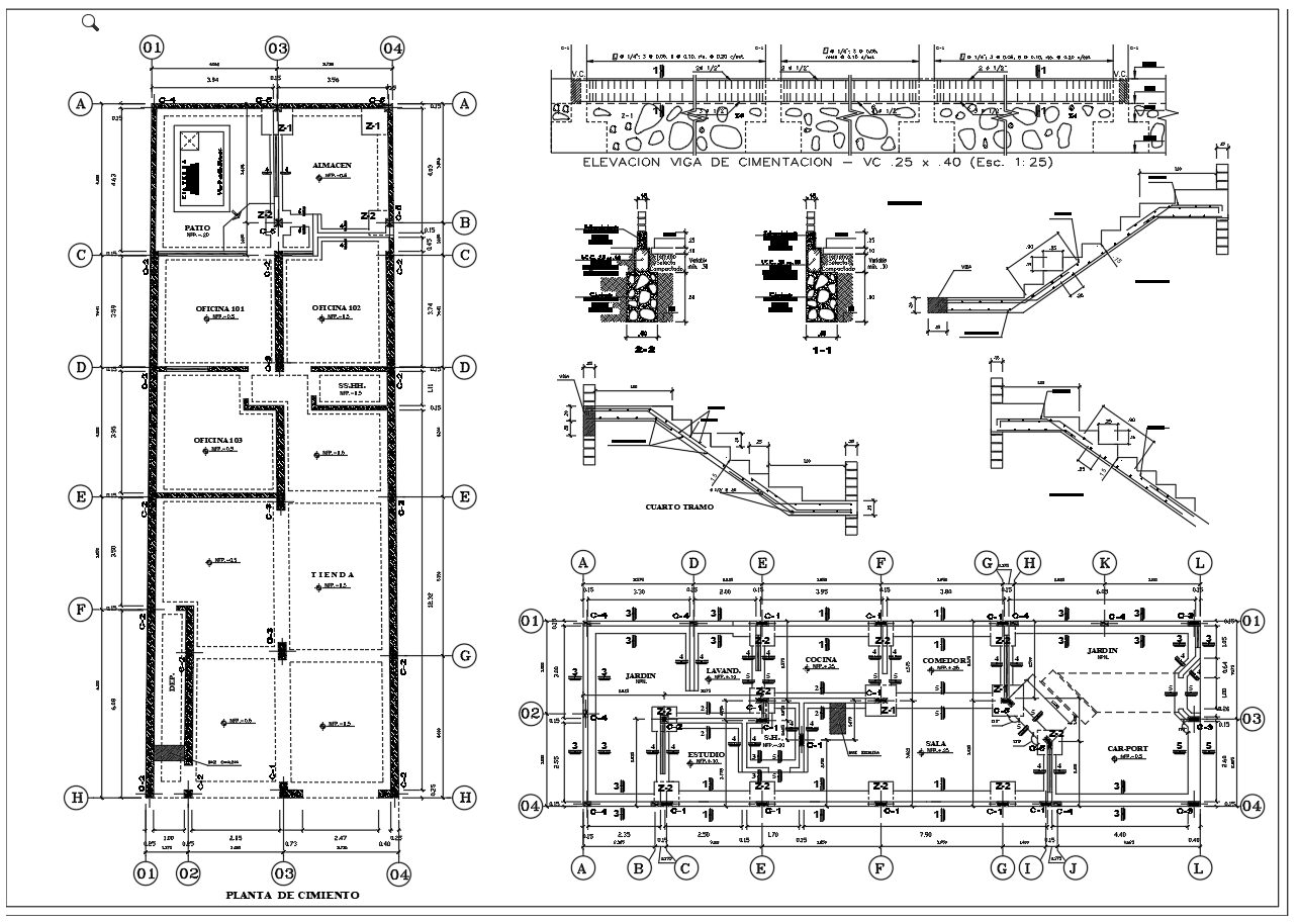
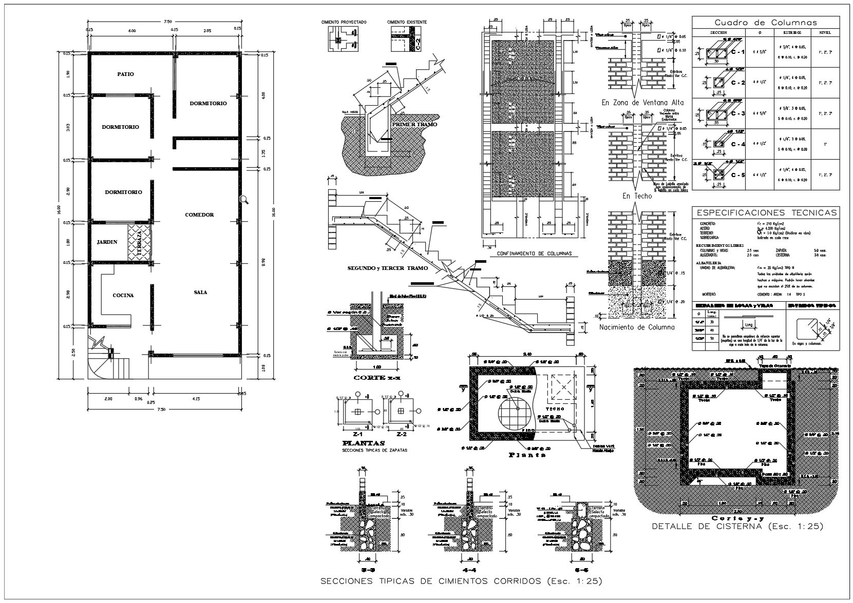
Cimentación y Estructura: Detalles técnicos para la base de la construcción, asegurando la estabilidad necesaria para un proyecto de uso mixto.
-
Ingenierías (Instalaciones):
-
Plano Sanitario: Redes de desagüe y ventilación.
-
Plano de Ingenierías: Esquemas eléctricos y de servicios esenciales.
-
🛠️ Beneficios de este Recurso
-
Ahorro de Tiempo: Evite iniciar desde cero. Utilice esta base profesional para adaptar el diseño a sus necesidades específicas o las de su cliente.
-
Versatilidad: Ideal para arquitectos que necesitan una base sólida para nuevos proyectos o para estudiantes en análisis de vivienda mínima comercial.
-
Legalización: Planos con el estándar técnico requerido para procesos de permisos y aprobaciones municipales.
🚀 Aplicaciones del Proyecto
-
Construcción Directa: Guía técnica para maestros de obra y constructores.
-
Estudio de Diseño: Base para renders y visualización arquitectónica avanzada.
-
Inversión Inmobiliaria: Proyectos de vivienda para alquiler con locales en planta baja.
Especificaciones Técnicas:
-
Formato: AutoCAD (.dwg) compatible con versiones 2013 en adelante.
-
Unidades: Métricas (metros).
-
Entrega: Link de descarga directa tras la validación de su compra.
-
DESCARGA PLANOS DE CASA DE (8m x 22m) 176m2 EN AUTOCAD .DWG
El precio original era: $20.00.$0.00El precio actual es: $0.00.
Pack Planos AutoCAD: Casa 176m² (8m x 22m) – Vivienda + Comercio
Obtenga el pack técnico completo para el diseño y construcción de una propiedad mixta en un lote de 8x22 metros. Este set de archivos .DWG incluye desde el diseño arquitectónico hasta las ingenierías hidráulicas y estructurales, ideal para quienes buscan optimizar espacio con locales comerciales en planta baja y vivienda en niveles superiores.
-
✅ Área: 176 m² de terreno (8m de frente x 22m de fondo).
-
✅ Contenido: Arquitectónicos, Estructurales (Cimentación), Eléctricos y Sanitarios.
-
✅ Formato: AutoCAD .DWG 100% editable.
-
✅ Uso: Construcción, legalización de planos y proyectos inmobiliarios.
-
✅ Entrega: Descarga digital inmediata.
DESCARGA SUPER PACK +100 PLANOS DE CASAS EN AUTOCAD .DWG













